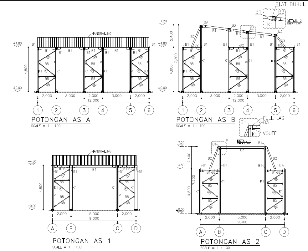
Structural Engineering Design Services

An Overview:

PCS structural engineering design services involves the planning and design to ensure they are safe, stable, and able to withstand the loads and forces they will encounter. Our engineering services are predominantly focused on the structural elements and requirements of a rope access framework design with the view of meeting the IRATA training syllabus.

in addition, our unique options of design choices, can integrate to or within GWO facilities, incorporating both in one design, subject to the client’s expectations and requirements. In support of the drawings, we also provide a markup of each exercise to provide your company’s training staff with a ready start approach when assembling all ropes in situ or of course we can set up all for you.

Structural engineers analyze the forces acting on a structure, select appropriate materials, and design the structural components to ensure the structure’s integrity and longevity. They also ensure that designs comply with any mandatory local regulations, considering possible factors like seismic activity, wind loads, and soil conditions.

Key Aspects of Structural Engineering Design Services:
  • Analysis and Design: Structural engineers use computer-aided design (CAD) software and finite element analysis (FEA) to model and analyze structures. This helps them predict how structures will behave under different loads and conditions.
  • Material Selection: Choosing the right materials is crucial. Structural engineers consider factors such as strength, durability, cost, and environmental impact when selecting materials like steel, concrete, timber, and composites.
  • Compliance and Safety: Ensuring that all designs meet local building codes, safety standards, and regulations is a primary responsibility. This includes adherence to guidelines related to fire safety,